成品化粪池都有什么尺寸的?
的有关信息介绍如下:1.一般情况下,农村自建房的化粪池大小以长2.7米,宽1.5米,深度为1.3米。

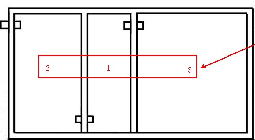
2.三个池子的容积比一般为2:1:3,在宽度和深度一样的情况下,一池,二池,三池的长度比应该为2:1:3。

3.一池和二池之间用过粪管连接,过粪管采用长度为70-75cm,内径为15cm的PVC管,过粪管与隔墙的夹角以为60度。

4.二池和三池之间也用过粪管连接,过粪管采用长度为50-55cm,同样内径为15cm的PVC管,角度也为60度。

5.一般来说第三池的出粪口到顶盖的距离为20cm。

6.最后一个完整的三格化粪池就形成了。

化粪池成品是一种利用沉淀和厌氧发酵的原理,去除生活污水中悬浮性有机物的处理设施,属于初级的过渡期生活处理构筑物。
生活污水中含有大量粪便、纸屑、病原虫,悬浮物固体浓度为100-350mg/L,有机物浓度BOD5在100-400mg/L之间,其中悬浮性的有机物浓度BOD5为50-200mg/L。污水进入化粪池经过12-24h的沉淀,可去除50%-60%的悬浮物。沉淀下来的污泥经过3个月以上的厌氧消化,使污泥中的有机物分解成稳定的无机物,易腐败的生污泥转化为稳定的熟污泥,改变了污泥的结构,降低了污泥的含水率。定期将污泥清掏外运,填埋或用作肥料。



